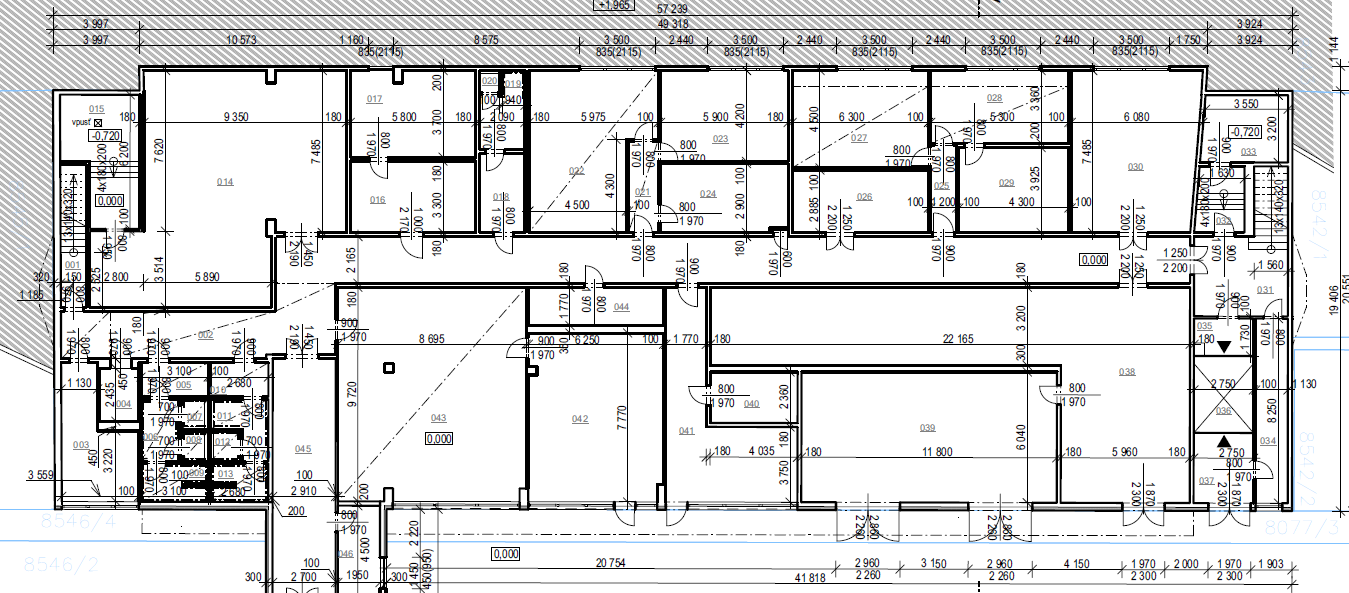
Brno, k.ú. Židenice

Datacentrum Pálavské náměstí 11

Komplexní zaměření a digitalizace objektu s datovými centry a kancelářskými prostory pro provoz krajské pobočky Cetin, a.s.

Digitalizace 2024.